LOGIN
HOME
CATEGORIES
UPLOAD FILE
PRICING
HOUSE PLAN
ABOUT US
CONTACT US
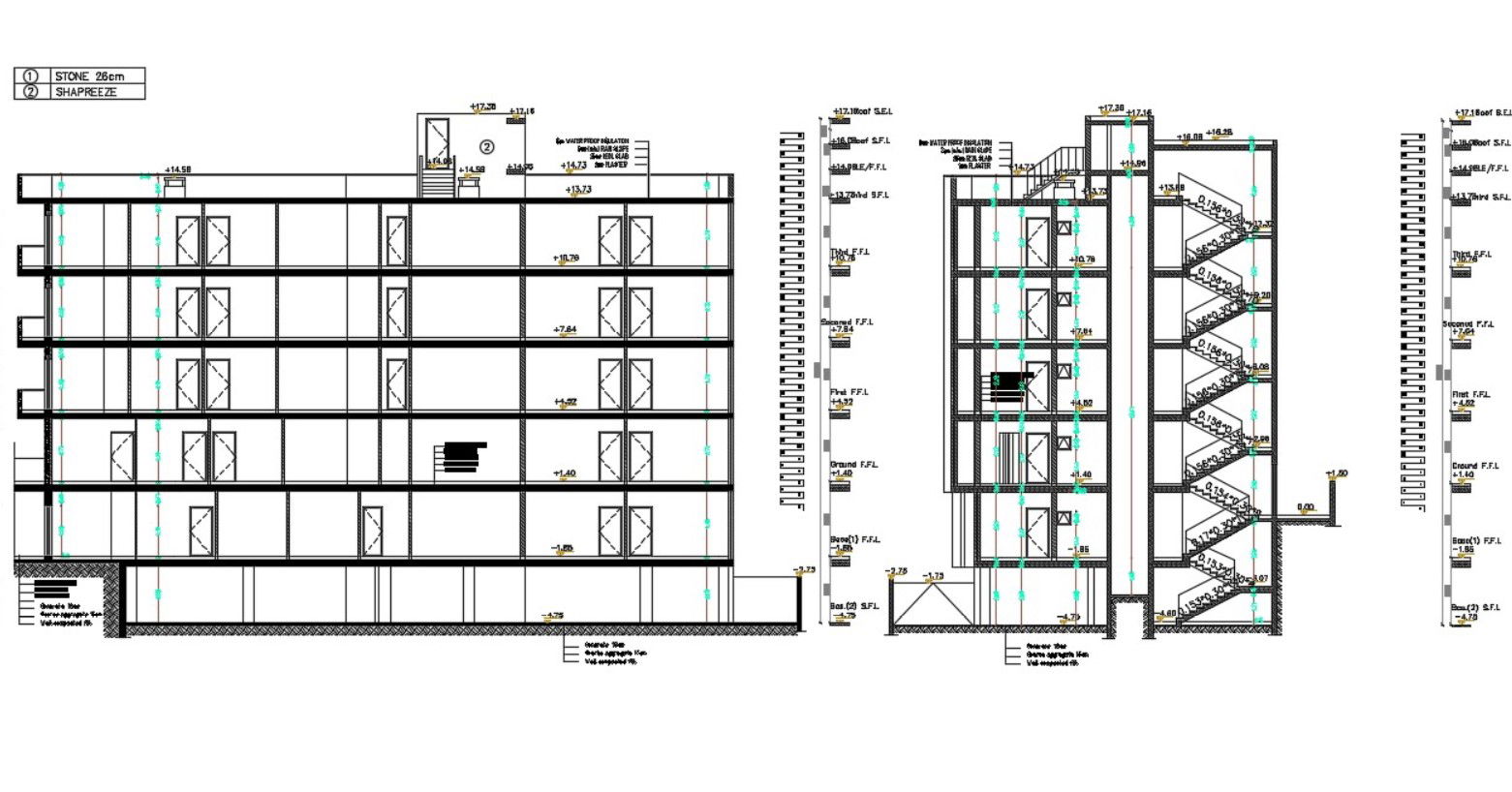
5 Storey Building Section Drawing With Dimension
Home
Categories
Architecture
Apartment Drawing
5 Storey Building Section Drawing With Dimension
Uploaded by:
Komal
View Profile
View Profile
Description
the apartment building section drawing shows RCC floor slab, wall section, staircase, parapet details and 5 storey building structure design.
File Type:
DWG
File Size:
156 KB
Category::
Architecture
Sub Category::
Apartment Drawing
type:
Gold
Uploaded by:
Komal
View Profile
Download
Add to libary
find Latest
Related
Files