Building Column Layout And Foundation Structure Design
Description
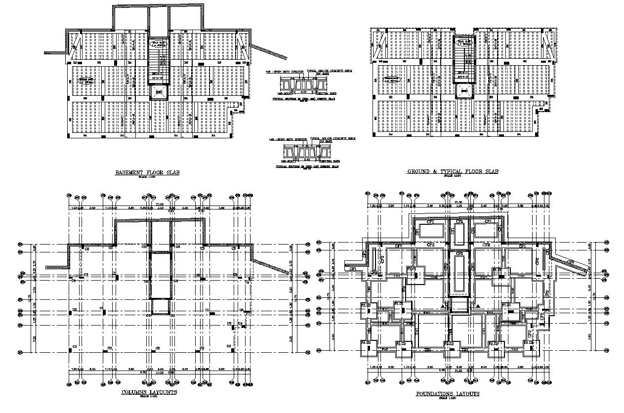
this is the structural design of the commercial building with basement, ground and typical slab details, column foundation design also column layout plan includes centerline, working dimension, peripheral RCC wall details and much more other details related to the structure.
Uploaded by:
Rashmi
Solanki

