House Foundation Column Plan With Reinforce Slab Drawing
Description
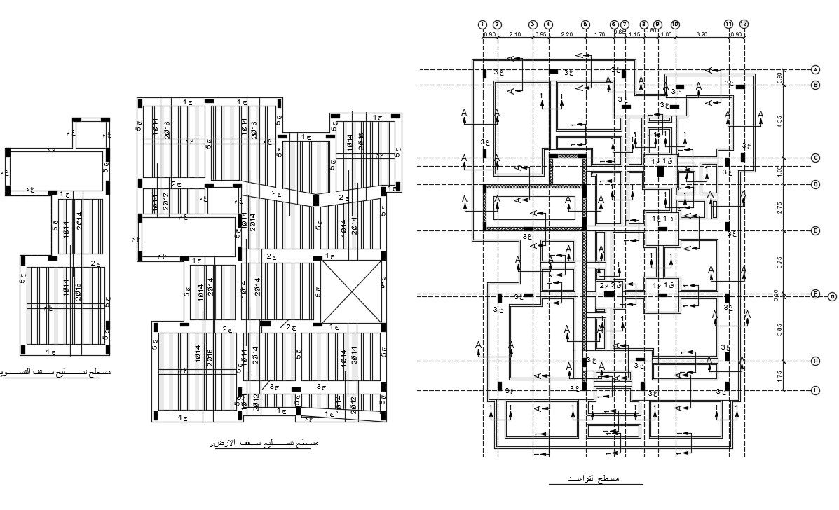
The house construction working plan with centerline CAD drawing shows the foundation column layout plan and reinforcement slab joint bar design. it is conventionally depictions of civil engineering or building structural components design. download house construction working plan DWG file.
Uploaded by:

