Architecture Drawing Of Hostel Plan And Working Drawing
Description
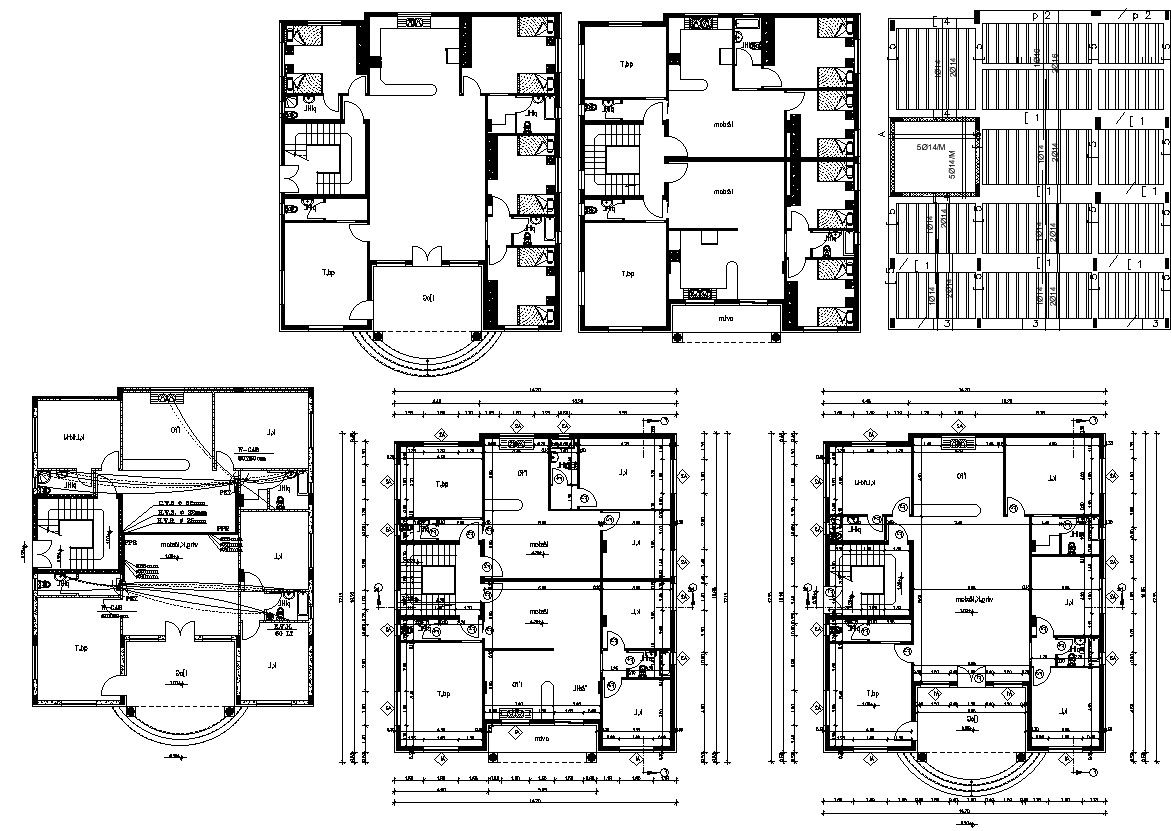
this is the many floors plans of dormitories includes working dimension drawing, structure slab column and beam design, kitchen and toilet plumbing details, furniture layout plan and much more other details related to building.
Uploaded by:
Rashmi
Solanki

