Construction Working Foundation And Column Layout Plan
Description
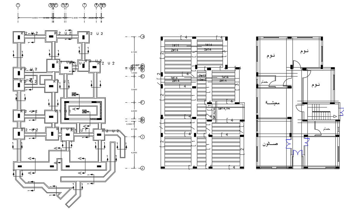
this the residence house construction working plan CAD drawing includes foundation and column layout plan with RCC reinforcement slab joint bar design. download DWG file of construction working design plan with dimension detail.
Uploaded by:

