Stair Column Underground Water Tank Bars Structure Drawing
Description
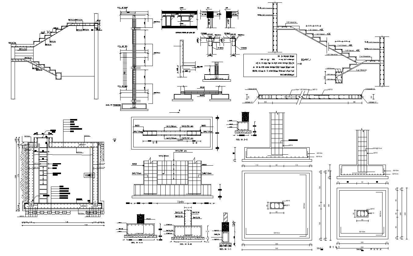
this is the details drawing of column footings, stairs section reinforcement details, water tank design RCC wall design, beam and column joints details, dimension details, its a structure related drawing.
Uploaded by:
Rashmi
Solanki

