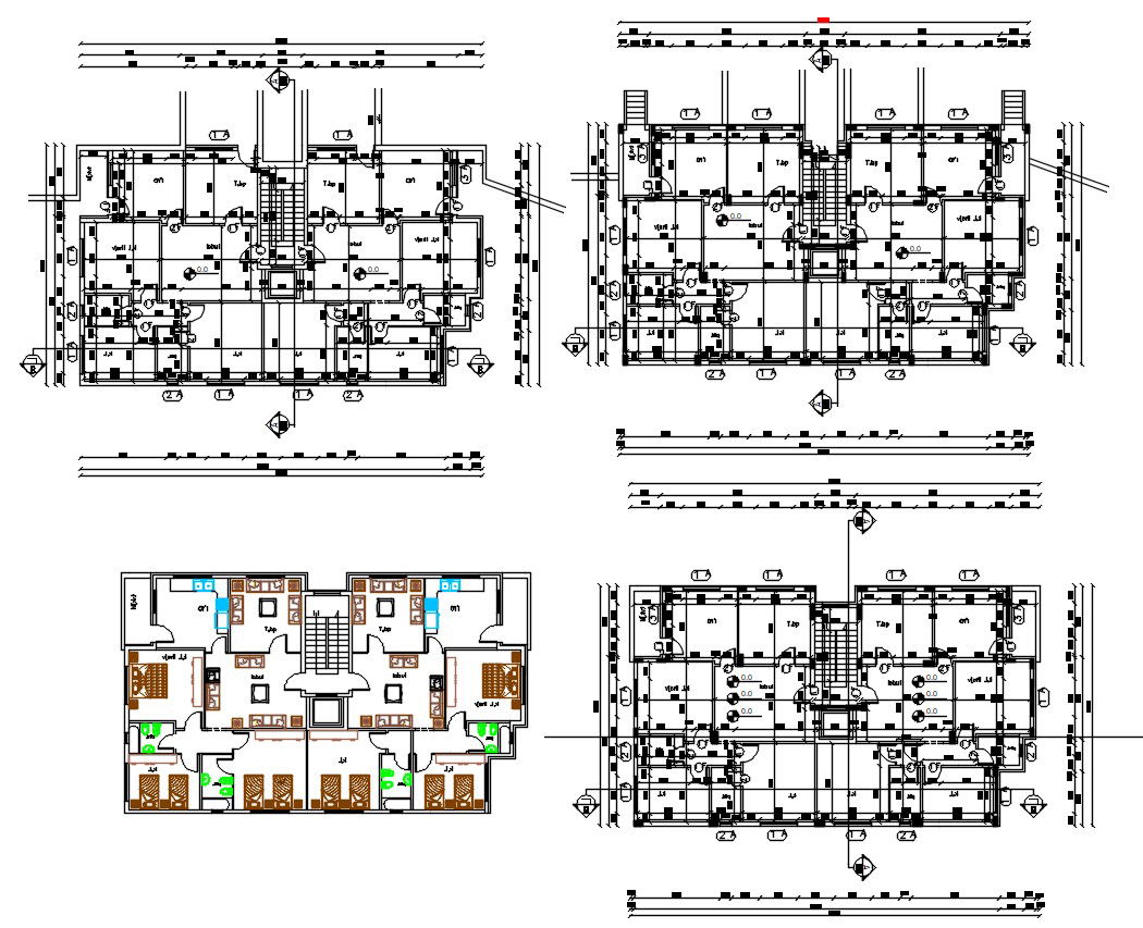
3 Bedroom Apartment House Furniture Layout Plan Drawing
Description
The architecture residence apartment house floor plan AutoCAD drawing shows cluster floor plan, 2 furniture house unit includes 3 bedrooms, kitchen, drawing room, and living area. download DWG file of apartment house plan and get more dimension floor detail.
Uploaded by:
