Apartment Building Section Drawing With Lift Elevator Design
Description
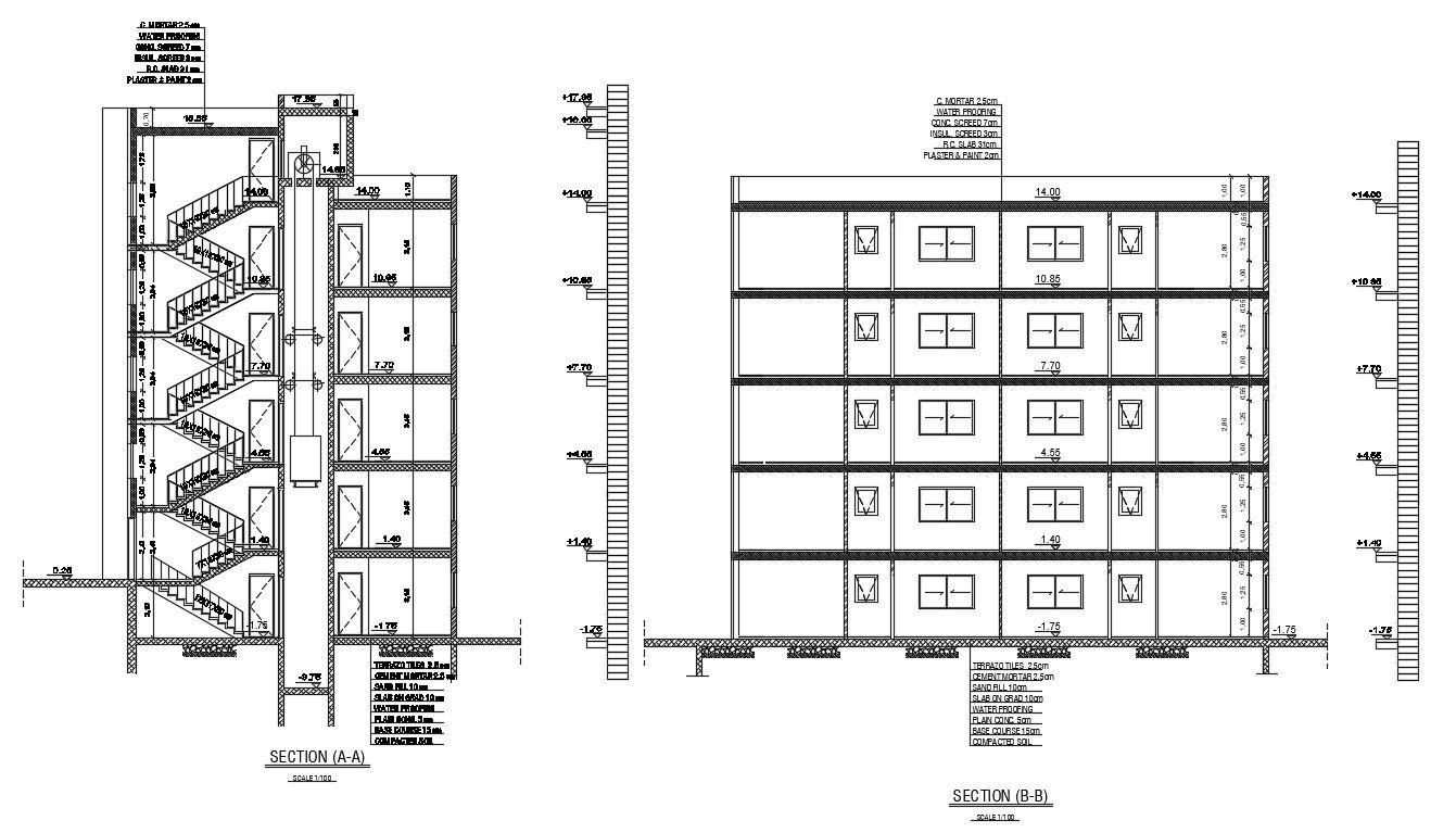
the apartment house buildings section drawing with lift elevator design CAD file shows riser and tread staircase design, 5 storey floor level detail, and RCC floor slab section drawing. download apartment building design with dimension detail DWG file.
Uploaded by:

