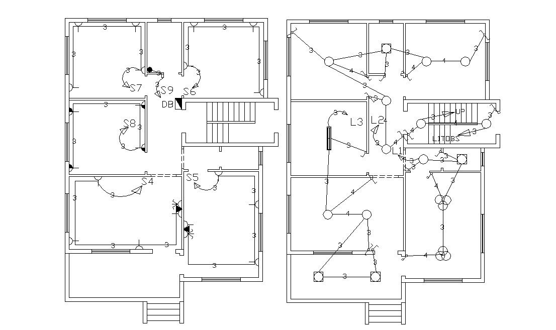
Residence House Electrical Wring Layout Plan Design
Description
The architecture residence house ground floor and first-floor plan electrical layout plan CAD drawing which shows lighting point. download residence house floor plan electrical layout plan drawing.
Uploaded by:
