Two Different Architecture House Plan Working Drawing
Description
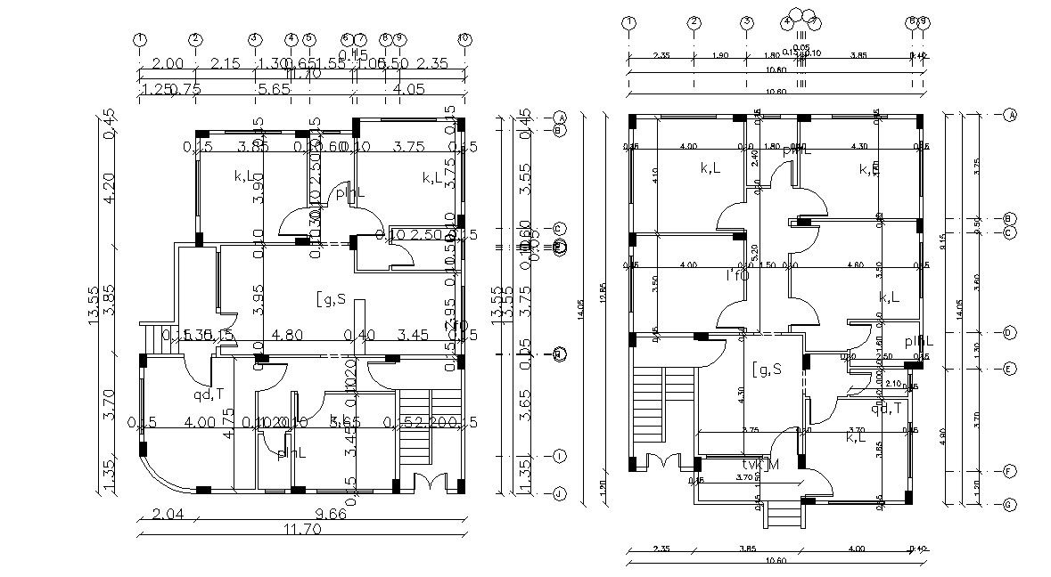
The architecture residence house different floor plan CAD drawing includes beam layout plan with all dimension detail. download house plan with tow different option floor plan CAD drawing.
Uploaded by:

