RCC Reinforcement Foundation Column Structure Drawing
Description
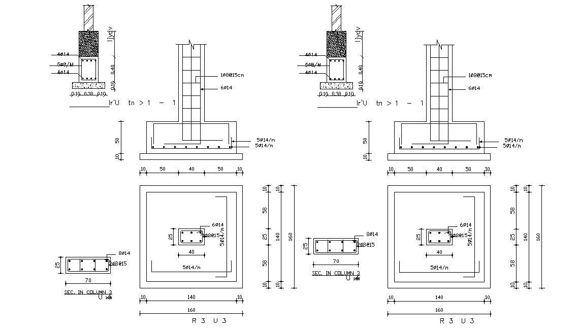
RCC foundation support base column section drawing shows the size of the footing with floor cover area derat and reinforce thickness detail. download free DWG file of RCC struction typical foundation column drawing.
Uploaded by:

