Education Building Plan With Structure Column Design
Description
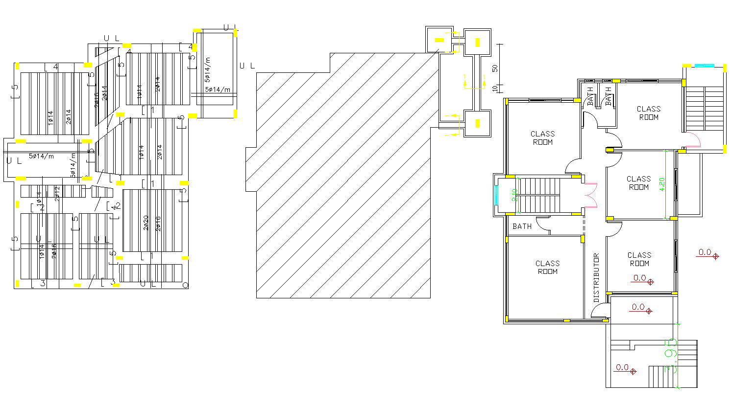
this is the architecture building plan includes classrooms, stairs, passage, common toilet, column layout plan, foundation design, slab reinforcement details, bars joints desing, and much more other details related to structure,
Uploaded by:
Rashmi
Solanki

