Four Side Modern Architecture Elevations Of Three Story Building
Description
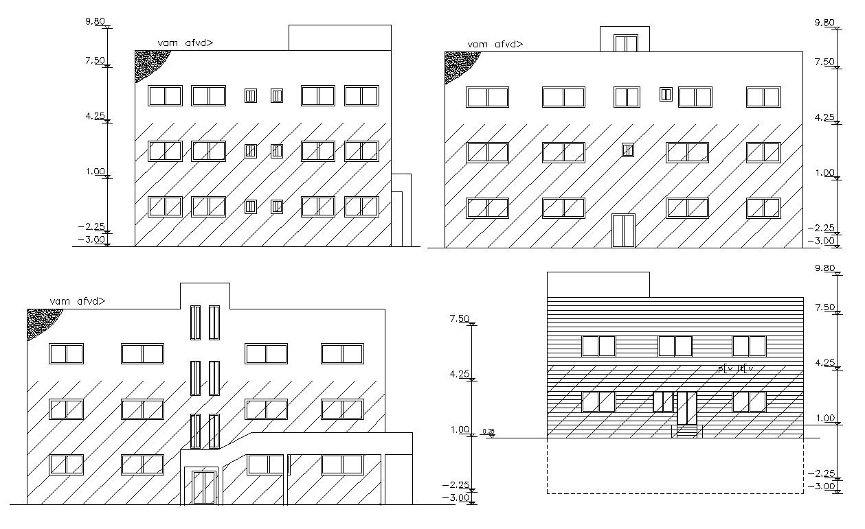
this is the levation of residential building with some hatching design, this is a three-story building with levels dimension details, doors windows design and much more other details in it.
Uploaded by:
Rashmi
Solanki

