Three Story Building Section Structure Drawing CAD
Description
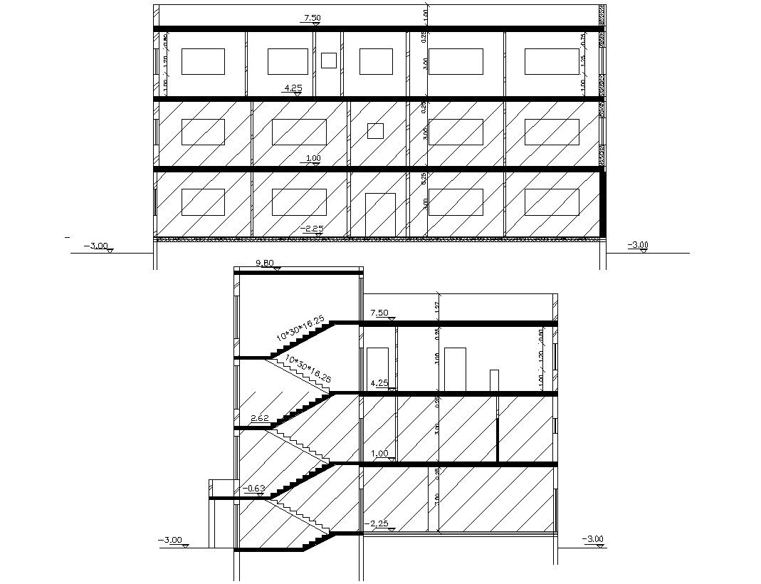
this is the two sections of residential building with floor levels dimension details, stair section design, doors and windows design hatching design in the section and much more other details related to section.
Uploaded by:
Rashmi
Solanki

