Architecture Building Electrical Slab Reinforcement Design
Description
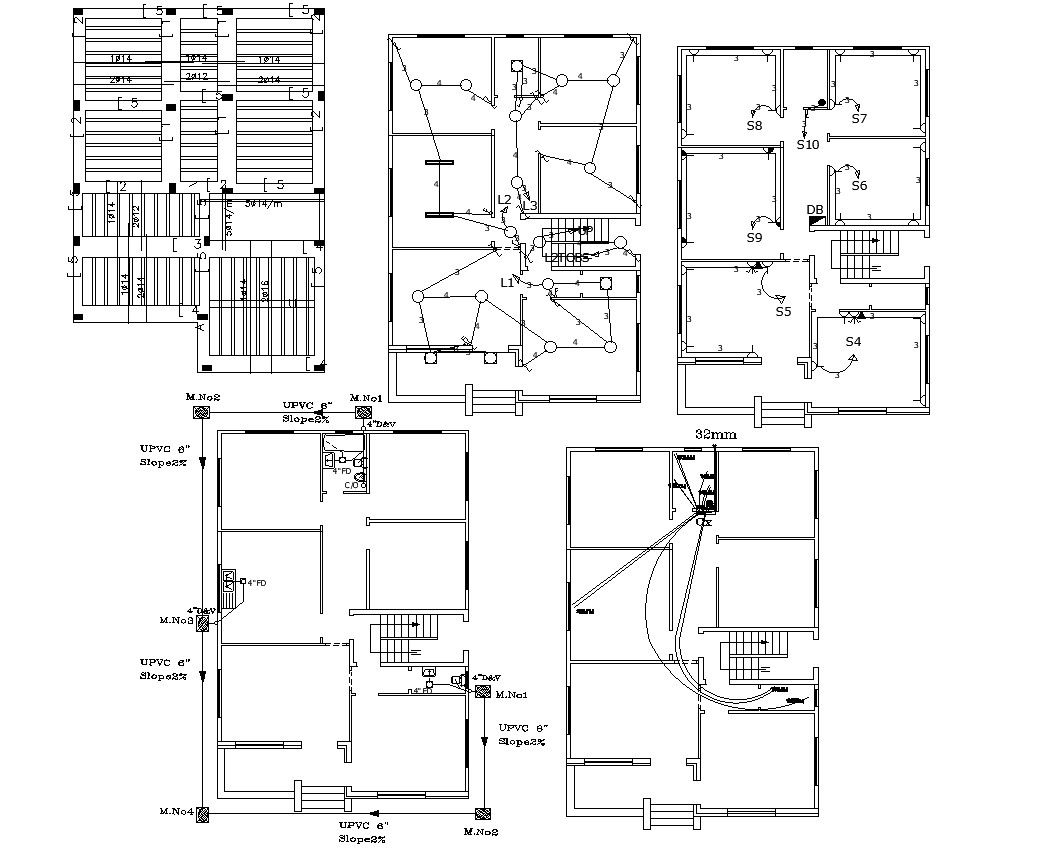
this is the planning of residential building includes electrical layout plan, slab casting details, kitchen toilet sanitary design, ground floor manhole details and much more other details related to building.
Uploaded by:
Rashmi
Solanki

