Structure Drawing Foundation Water Tank Design With Dimension
Description
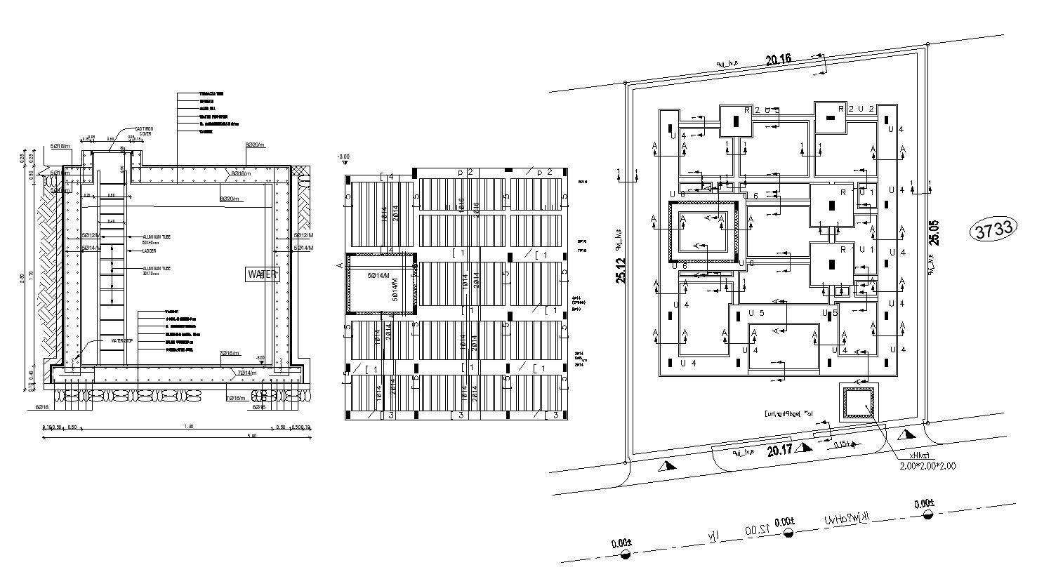
this is the detail drawing of water tank section, column foundation details, slab reinforcement design, shear wall section, plot demarcation details, some texting and dimension details related to drawing.
Uploaded by:
Rashmi
Solanki

