Download Plumbing Drawing Of Huge House Building AutoCAD File
Description
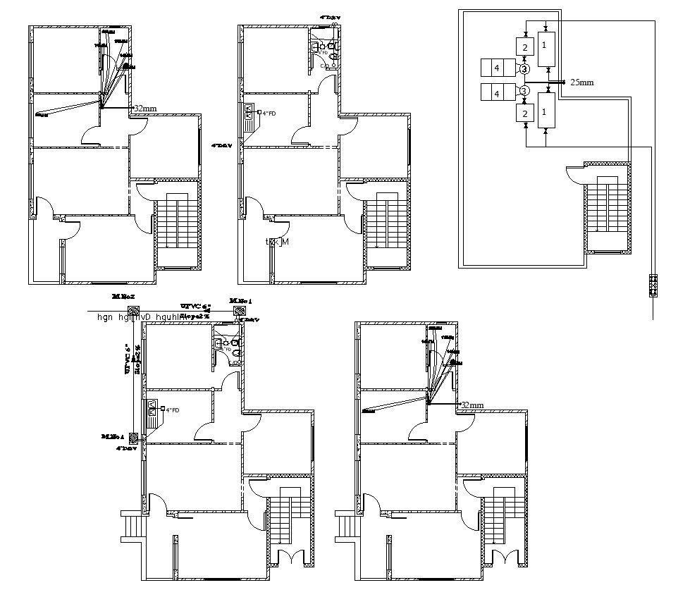
this is the many floor pls plan of residential building, some plumbing details drawing in it, toilet and kitchen sanitary design, terrace floor plan, it's a drainage system drawing.
Uploaded by:
Rashmi
Solanki

