Two Section Of House Building Drawing AutoCAD File
Description
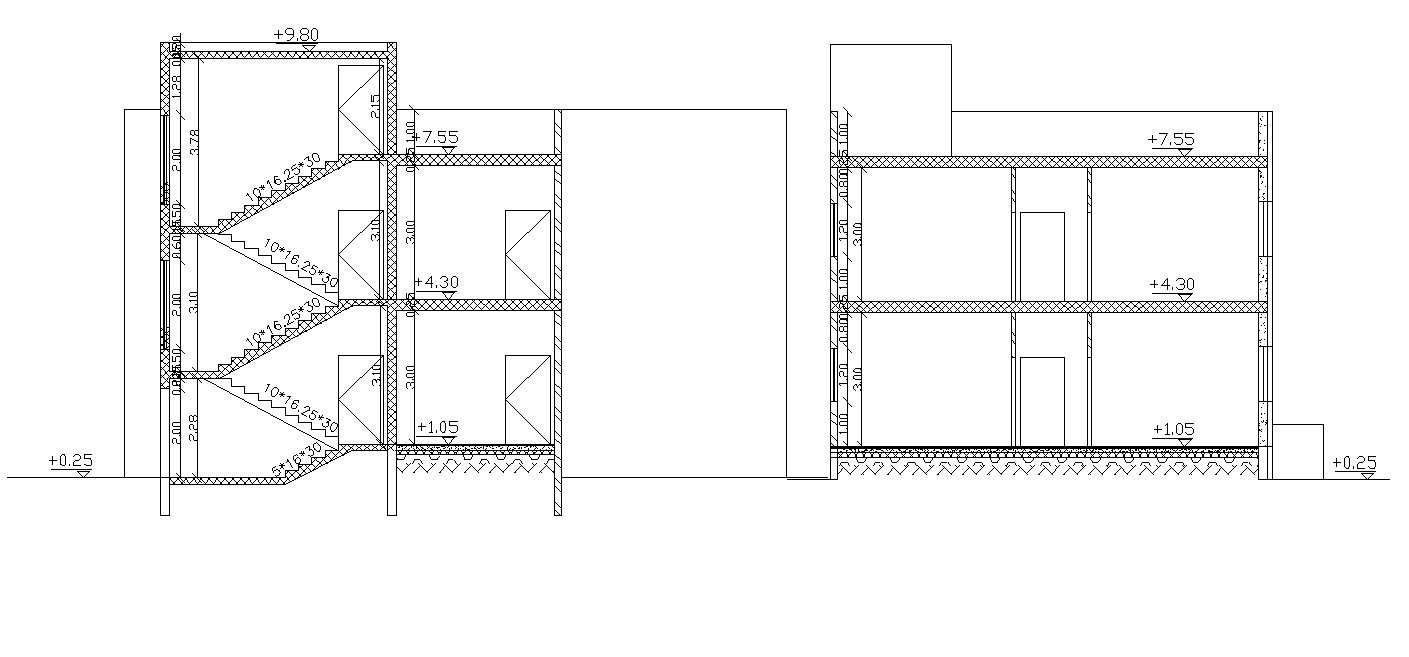
this is the two section of residential building with floor levels dimension details, stair section structure details, ground and first-floor levels details and much more other details related to the section.
Uploaded by:
Rashmi
Solanki

