AutoCAD Apartment Building Plan And Section Design
Description
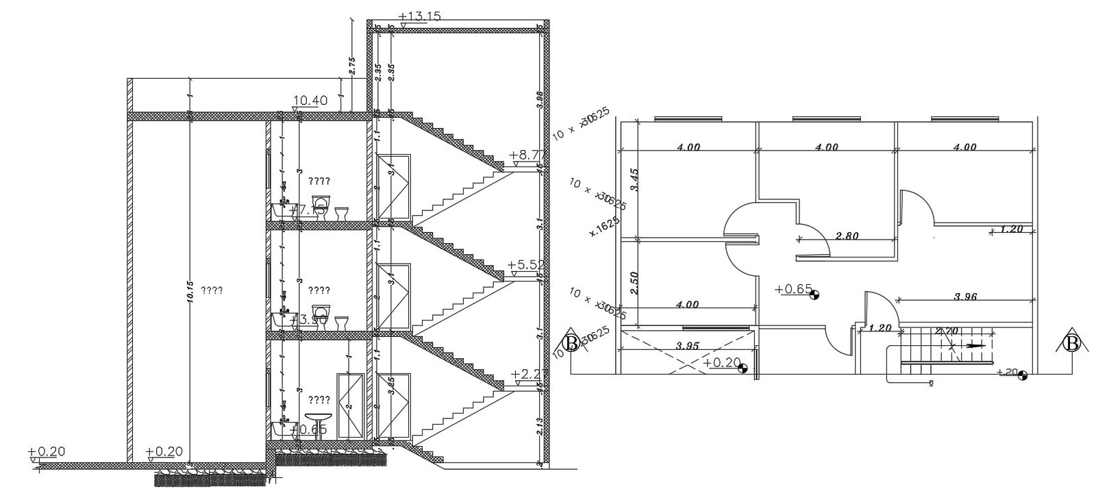
this is the planning of flat design with three-story section, in the design drawing room, bedrooms, balcony internal dimension details, floor height working dimension, toilet sanitary details.
Uploaded by:
Rashmi
Solanki

