Drainage And Plumbing Line Plan Of Apartment Design
Description
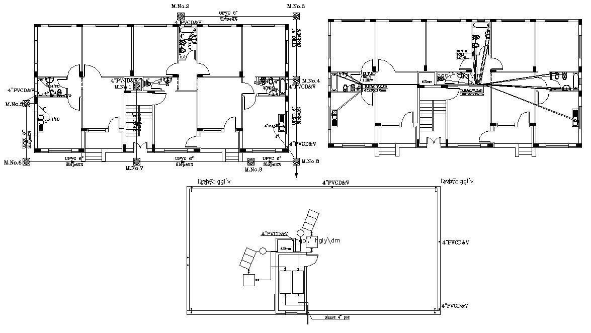
2d CAD drawing of residence apartment plumbing plan and drainage line with chamber box also has a terrace roof plan in CAD drawing. download DWG file of apartment plan with plumbing and waster closet line plan.
File Type:
DWG
File Size:
978 KB
Category::
Dwg Cad Blocks
Sub Category::
Autocad Plumbing Fixture Blocks
type:
Gold
Uploaded by:
