Architecture Apartment Building Floor Plan And Working Drawing
Description
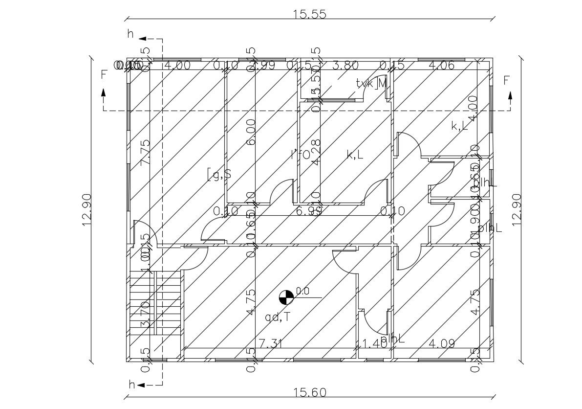
this is the planning of flat building design includes stair, drawing room, bedrooms, toilets, kitchen design, doors and windows marking in plan, working drawing dimension in it.
Uploaded by:
Rashmi
Solanki

