Commercial Building Floor Plan And Column Layout Plan
Description
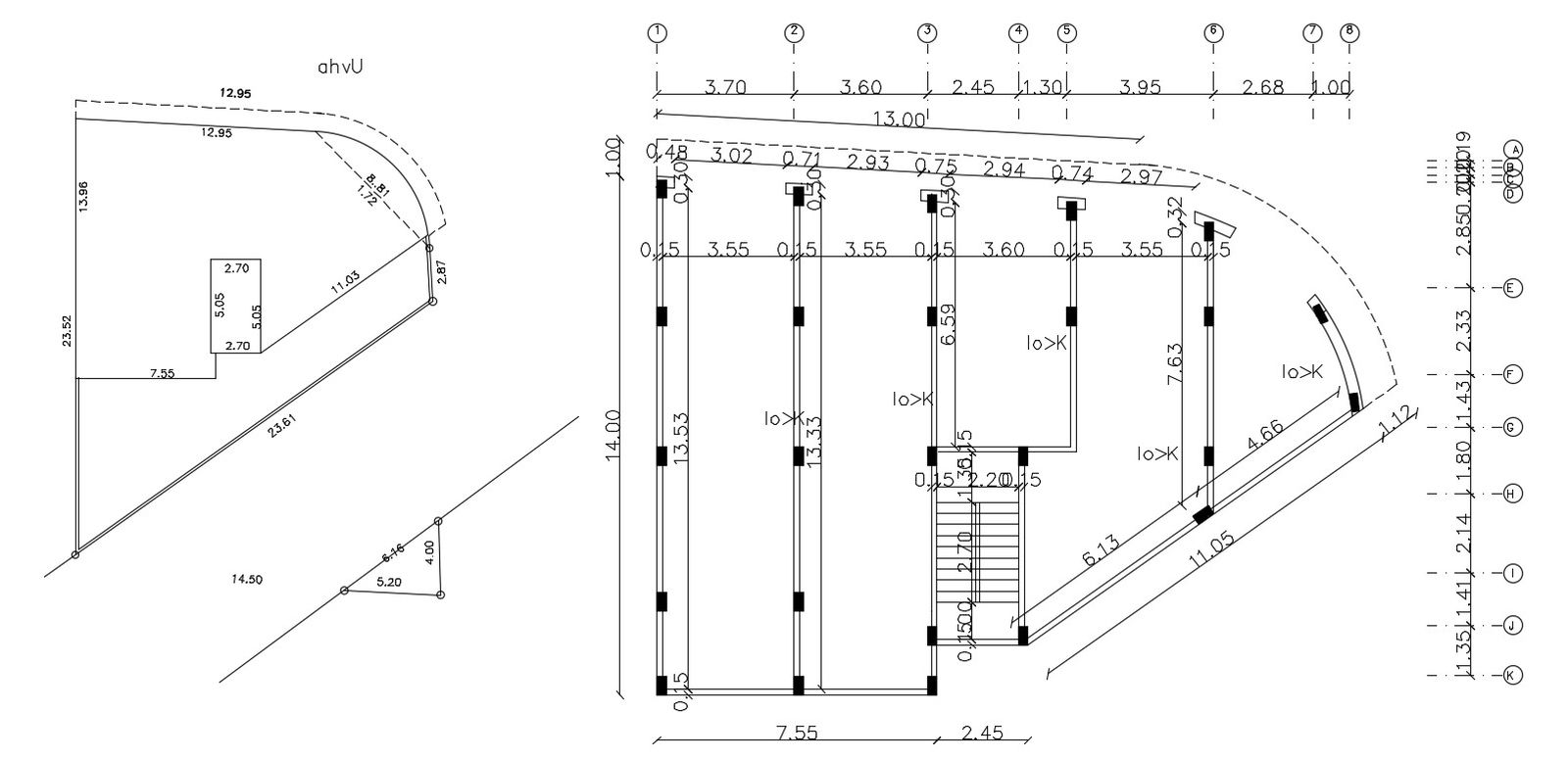
this is the Architecture Commercial floor plan includes working drawing dimension, structure column layout plan. survey site demarcation with main road attached, centerline details and much more other details.
Uploaded by:
Rashmi
Solanki

