Architectural Huge Bungalow Plan And Structural Column Design
Description
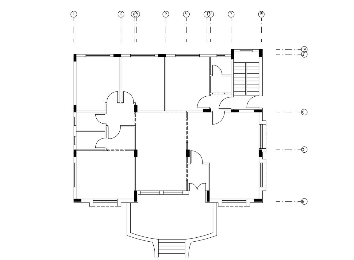
this is the modern bungalow planning with column layout, centerline detail. in this planning added main foyer, drawing room, living area, kitchen, dining, bedrooms, common and attach toilet and much more other details related to good bungalows.
Uploaded by:
Rashmi
Solanki

