Foundation And Column Layout Plan Of Apartment CAD Drawing
Description
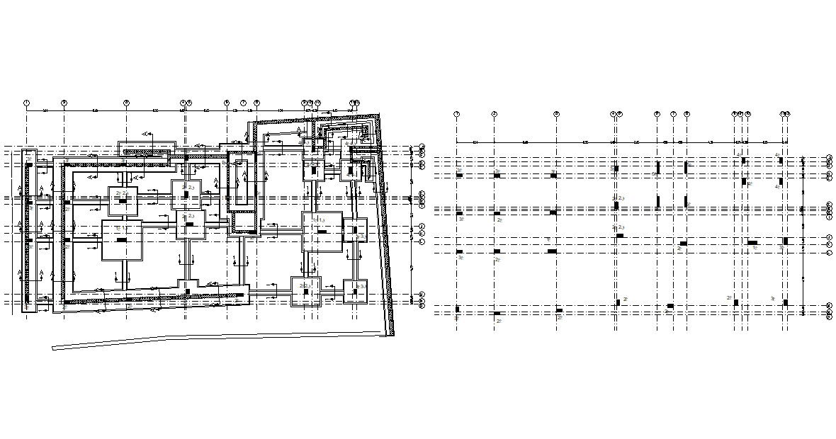
Download free DWG file of civil engineering construction drawing includes a foundation plan and column layout plan with centerline design. this is construction load different categorized according to the type of support.
Uploaded by:

