House Construction Site Plan Free CAD Drawing

House Construction Site Plan Free CAD Drawing
Profile

Uploaded by:

Komal

Description
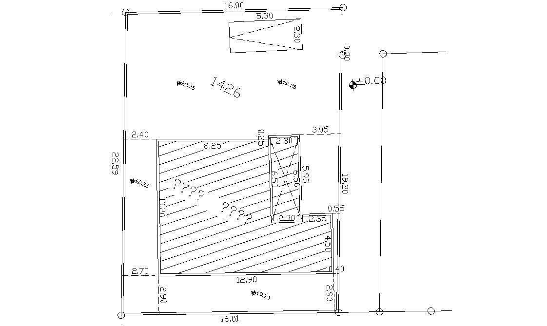
this is the simple construction house site plot plan with land area survey detail and boundary wall design with dimension detail. download free DWG file of house final site plan.
Profile

Uploaded by:

Komal

find Latest

Related Files

WhatsApp Chat