Exterior Wall Cutting Section And House Plan Design
Description
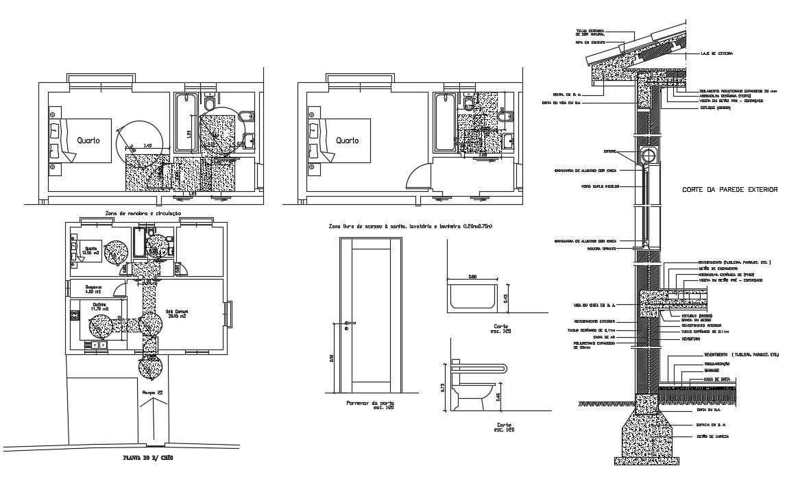
2D CAD Drawing of residence house plan 2 includes bedroom, kitchen, master bathroom and RCC wall cutting roof to floor connection detail. download DWG file of house floor design with description details.
Uploaded by:
