Architecture Residential Building Floor Plan AutoCAD File
Description
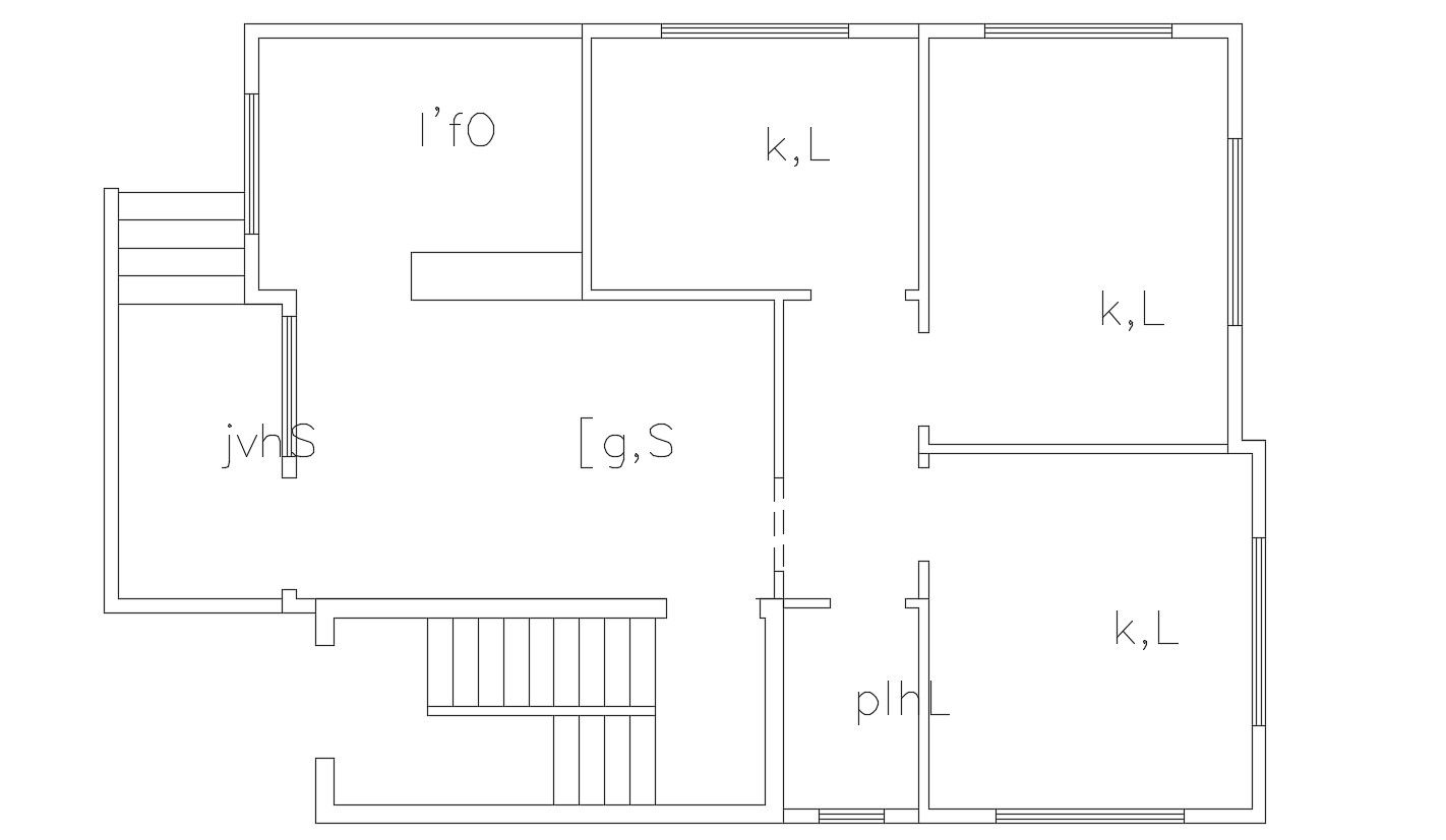
this is the planning of house desing with some texing.in this planning added main foyer, drawing room, stairs, bedrooms kitchen, toilets, its a simple drawing of architecture house building.
Uploaded by:
Rashmi
Solanki

