House Building Four Side Elevations And Sections AutoCAD
Description
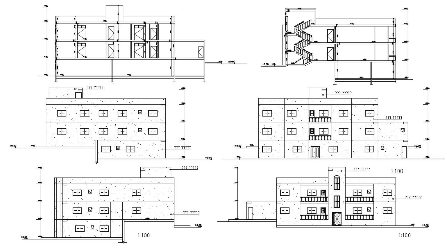
this is the drawing of residential building elevations and sections.floor levels dimension details, stair section details.it's a simple elevation of house building design with some texting.doors, windows and railing design in elevation.
Uploaded by:
Rashmi
Solanki

