Architecture House Ground floor And Terrace Plan Drawing
Description
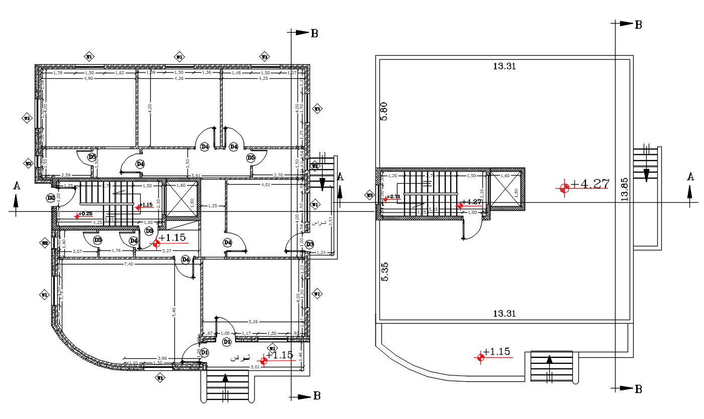
The architecture residence house ground floor plan and terrace floor plan with all dimension detail. download DWG file of 3 bedroom house floor plan and get more details in this CAD drawing.
Uploaded by:
