2 BHK House Furniture Layout Plan AutoCAD Drawing
Description
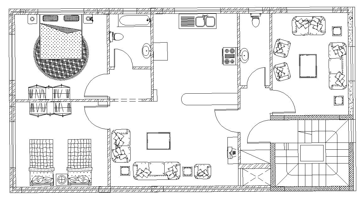
The architecture residence house furniture layout plan CAD drawing includes 2 bedrooms, drawing room, kitchen and living room. download DWG house plan and a collection of fabulous ideas that would serve as a good source of inspiration AutoCAD drawing.
Uploaded by:

