Free Download House Terrace Floor Plan With Working Dimension

Free Download House Terrace Floor Plan With Working Dimension
Profile

Uploaded by:

Rashmi

Solanki

Description
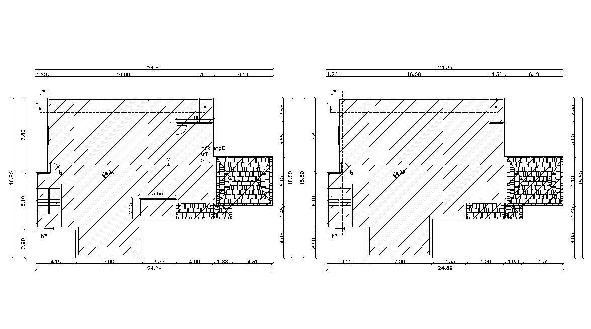
this is the two residential terrace floor plan with working dimension, roof and terrace different types of hatching and much more other details.
Profile

Uploaded by:

Rashmi

Solanki

find Latest

Related Files

WhatsApp Chat