Architectural Plan Of Commercial Building Design CAD Drawing
Description
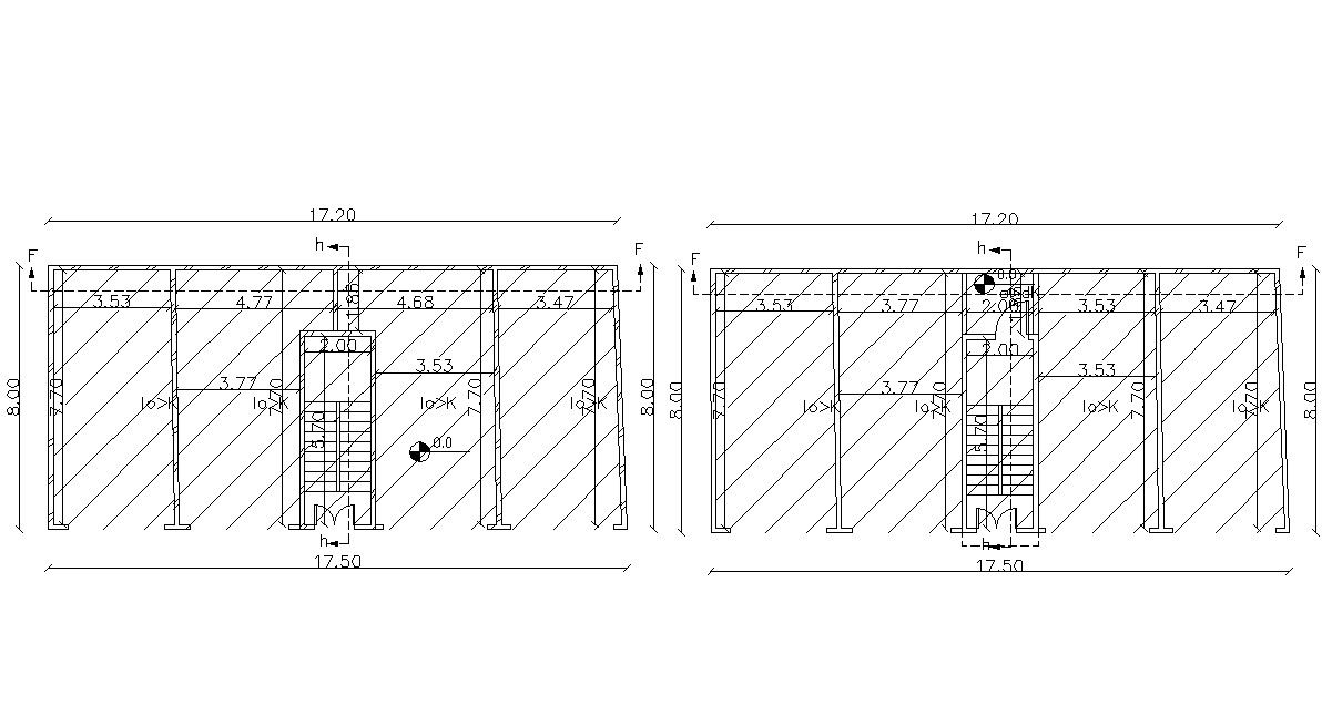
this is the two-floor plan of commercial building with working drawing dimension details, section line in the plan, it's a shops layout plan and some basic hatching in plan.this is the small commercial complex design.
Uploaded by:
Rashmi
Solanki

