Structure Column Foundation Design With Bars AutoCAD File
Description
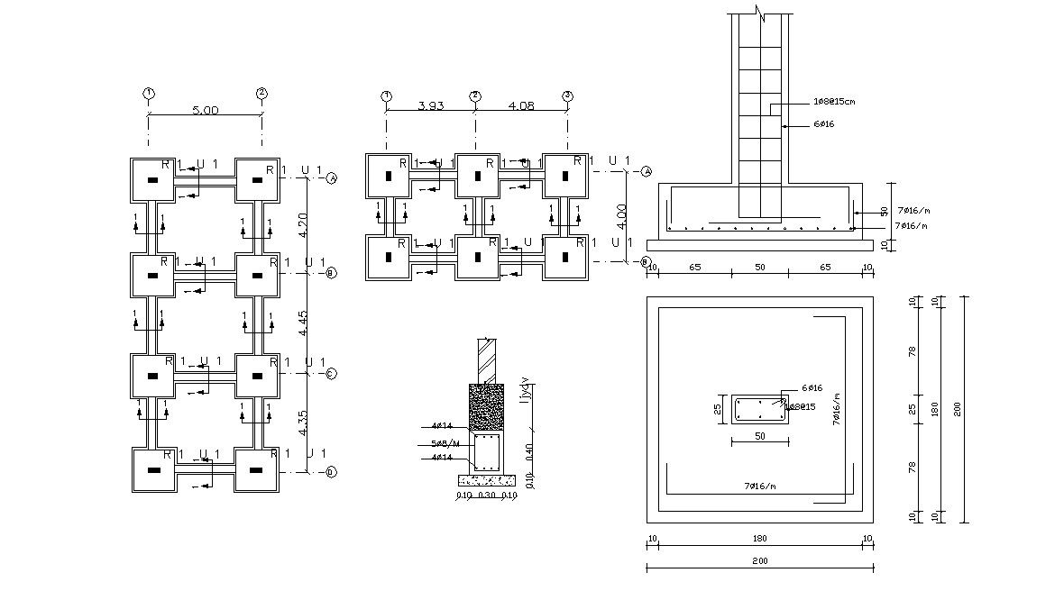
this is the drawing of column structure foundation details includes foundation section, plan, internal reinforcement details, plinth beam and wall joints, some working drawing dimension details.
Uploaded by:
Rashmi
Solanki

