Residence House Building Cross Section Drawing DWG
Description
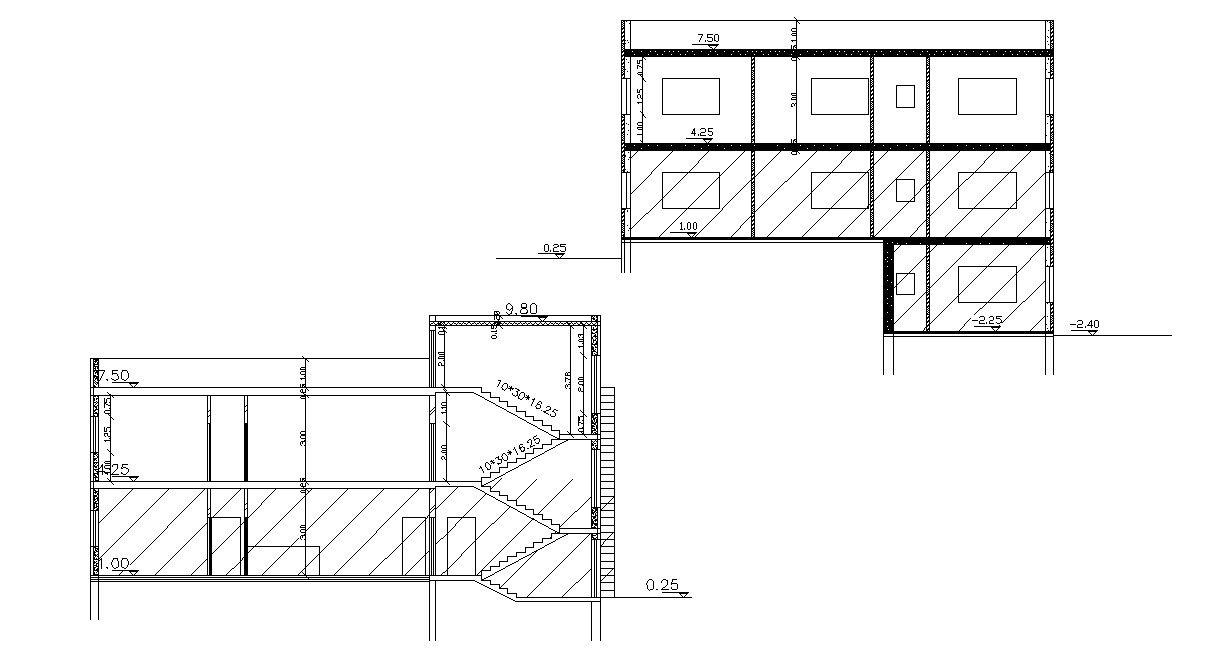
The residence house 2 storey building section drawing shows wall section drawing, RCC floor slab design, and staircase with dimension details. download DWG file of house building section drawing.
Uploaded by:

