AutoCAD File House Terrace Plan With Working Drawing
Description
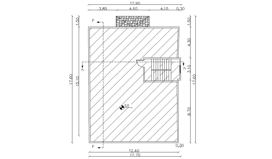
this is the planning of residential house building terrace plan includes working drawing dimension details, some hatching design in plan and roof details. free download this file use in related project.
Uploaded by:
Rashmi
Solanki

