Apartment Plan With Plumbing And Electrical Layout Plan
Description
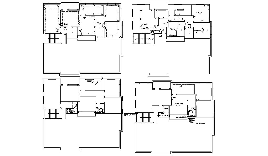
The architecture apartment house building CAD drawing includes plumbing and electrical layout plan with false ceiling design. download DWG file of apartment floor plan AutoCAD drawing and use for CAD presentation.
Uploaded by:

