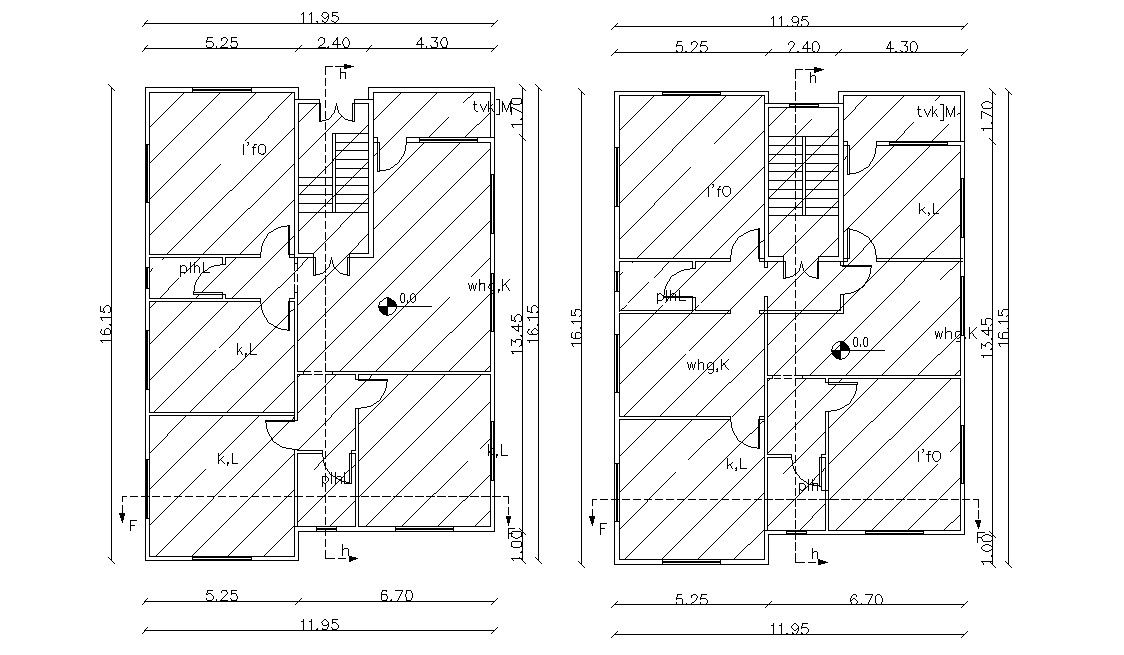
2 BHK Flat Plan With Dimensions AutoCAD Drawing
Description
The architecture apartment house floor plan CAD drawing includes 2 bedrooms, drawing room, kitchen and living room with all dimension details. download DWG apartment floor plan and a collection of fabulous ideas that would serve as a good source of inspiration AutoCAD drawing.
Uploaded by:
