Residential House Floors Plan With Column Design AutoCAD Drawing
Description
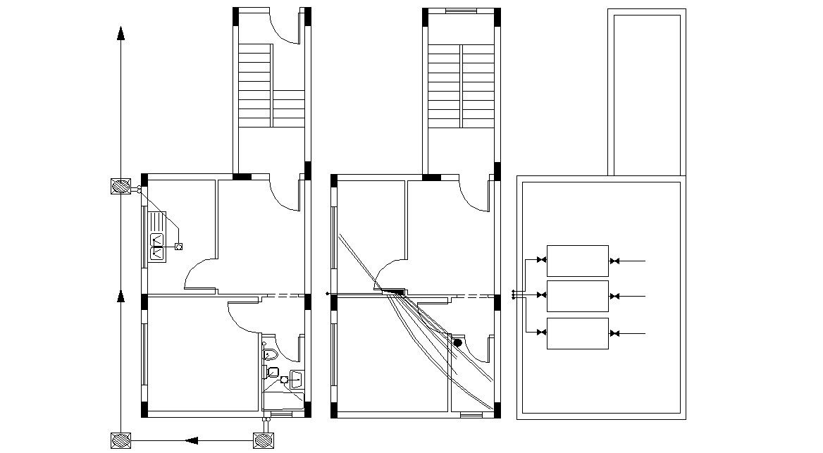
this is the planning of house design with structure column layout design, toilet and kitchen sanitory design, terrace level plan with solar panel details and much more other details related to planning.
Uploaded by:
Rashmi
Solanki
