Residential House Building Sections And Dimension Design
Description
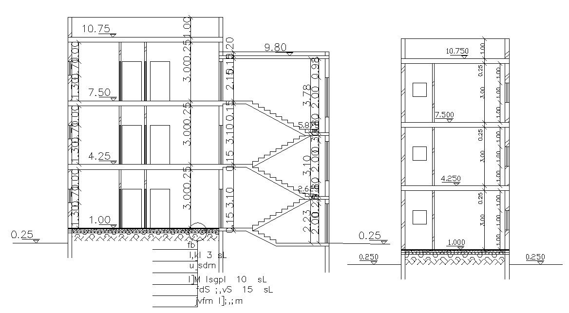
this is the drawing of house sections with floor levels dimension details. staircase structure details, flooring material design, doors and windows marking in section and some texting details in it.
Uploaded by:
Rashmi
Solanki

