Residential Structural Column Foundation Design CAD File
Description
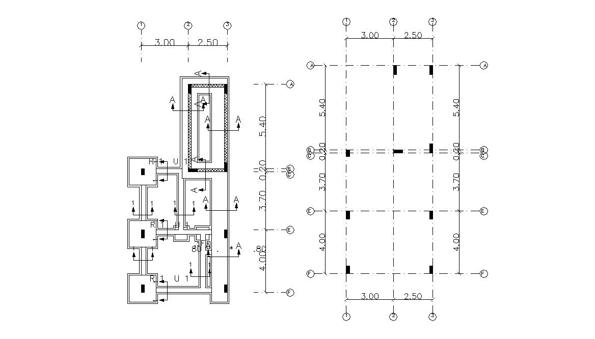
this is the drawing of column flooring detail with centerline plan column marking layout peripheral excavation design, section line in the plan, this is the structure related drawing.
Uploaded by:
Rashmi
Solanki

