Residential House Floor Plan And Plumbing Design AutoCAD Drawing
Description
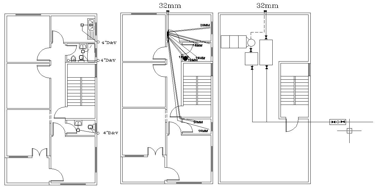
this is the architectural floor plan with kitchen and toilet plumbing details, terrace floor plan, toilet sanitory layout plan and much more other details related to drawing.
File Type:
DWG
File Size:
403 KB
Category::
Dwg Cad Blocks
Sub Category::
Autocad Plumbing Fixture Blocks
type:
Free
Uploaded by:
Rashmi
Solanki

