Working Plan For House Construction AutoCAD Drawing
Description
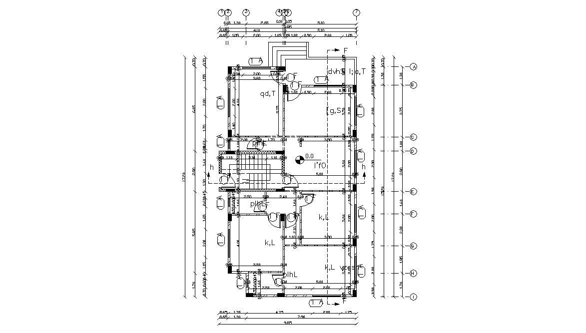
Architecture house construction set of plan of working drawing includes a column layout plan with dimension detail download house construction working plan with installation methods and techniques detail.
Uploaded by:

