Typical Floor Plans And Working Drawing Design Architectural
Description
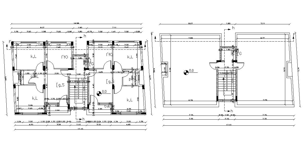
this is the planning of apartment design with structure column layout, working drawing dimension details, doors and window morning in plan, terrace floor plan and stair cabin dimension details.
Uploaded by:
Rashmi
Solanki

