Residential Apartment Building Design With Electrical Plan
Description
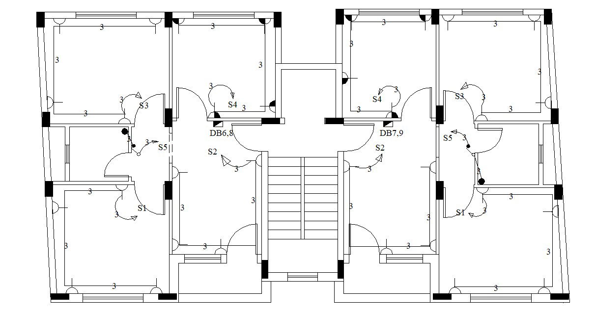
this is the drawing of house building design with electrical layout plan, structure column marking design, its an architectural plan of residential floor plan in this planning drawing room, kitchen, toilets, bedrooms.
Uploaded by:
Rashmi
Solanki

