Architecture Working Plan For Construction House Project
Description
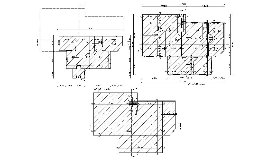
The architecture working plan of ground floor, first-floor plan and terrace plan with dimension and hatching design of residence house project drawing. download construction working plan and collection this civil inspiration CAD drawing.
Uploaded by:

