House Working Floor Plan With Dimension CAD Drawing
Description
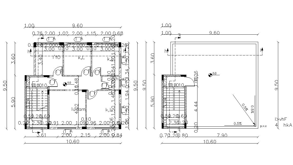
The construction house working plan of ground floor plan terrace floor plan includes a column layout plan with dimension details. download construction house working plan DWG file and this drawing is useful for civil engineer for basic knowledge of congestion building.
Uploaded by:

