5 Storey Apartment Building Section CAD Drawing DWG
Description
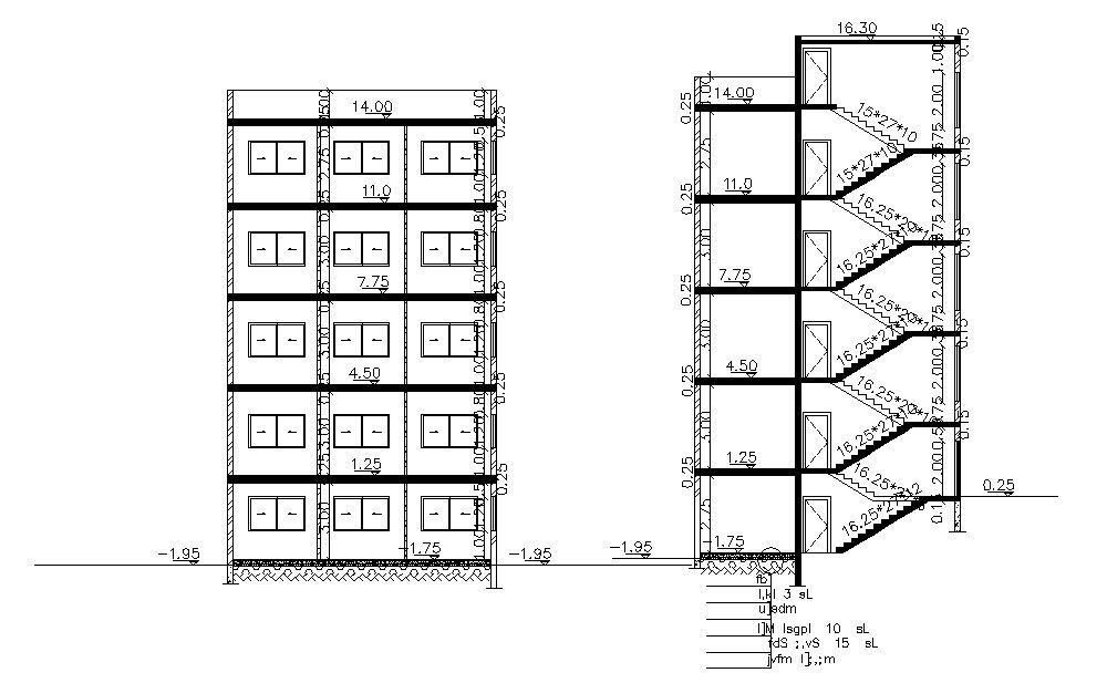
this is 2 different angle section drawing of apartment building design CAD drawing shows floor level detail, RCC staircase and slab design with dimension detail. download DWG file apartment building section drawing.
Uploaded by:

