Download Free Apartment Building Elevation Design DWG File
Description
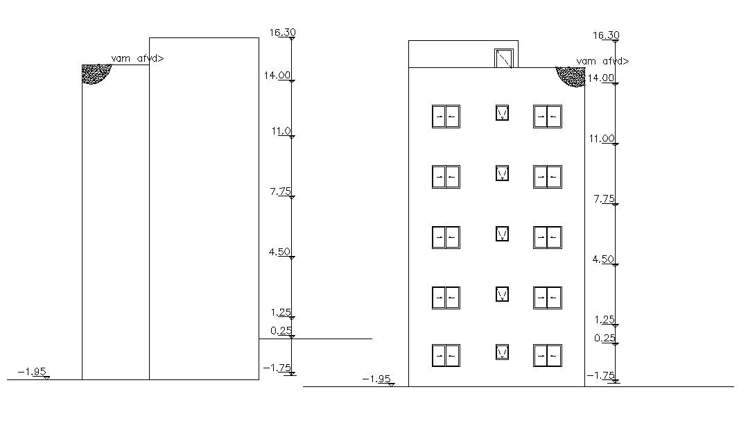
this is 5 storey apartment building elevation design CAD drawing includes building floor level structure detail with dimension, door and window design. download free DWG file of apartment house elevation design.
Uploaded by:

