Single Storey House Building Sectional Elevation Design
Description
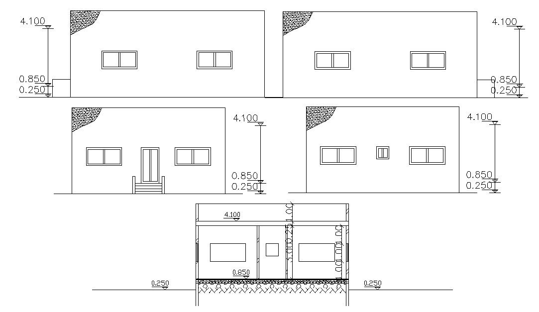
2d CAD drawing of single storey house building elevation design which are viewed from a number of different angles and also can also go with different outdoor designs. download DWG file of house elevation design.
Uploaded by:
