Combined Footing Foundation Structure Drawing Free DWG File
Description
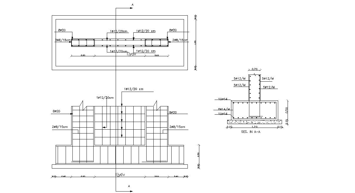
2D CAD drawing shows spread footing which supports two columns is termed as a combined footing foundation structure that both columns carry unequal loads. download free DWG file of RCC combine foundation column section drawing.
Uploaded by:

